Villa a schiera in vendita

Pesaro, via palestro - Celletta
€ 315.000
4 locali 4 locali
155 Mq 155 Mq
2 bagni 2 bagni

Villa a schiera in vendita

Pesaro, via palestro - Celletta

Descrizione annuncio

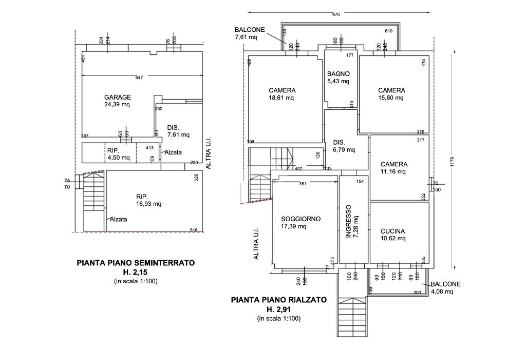
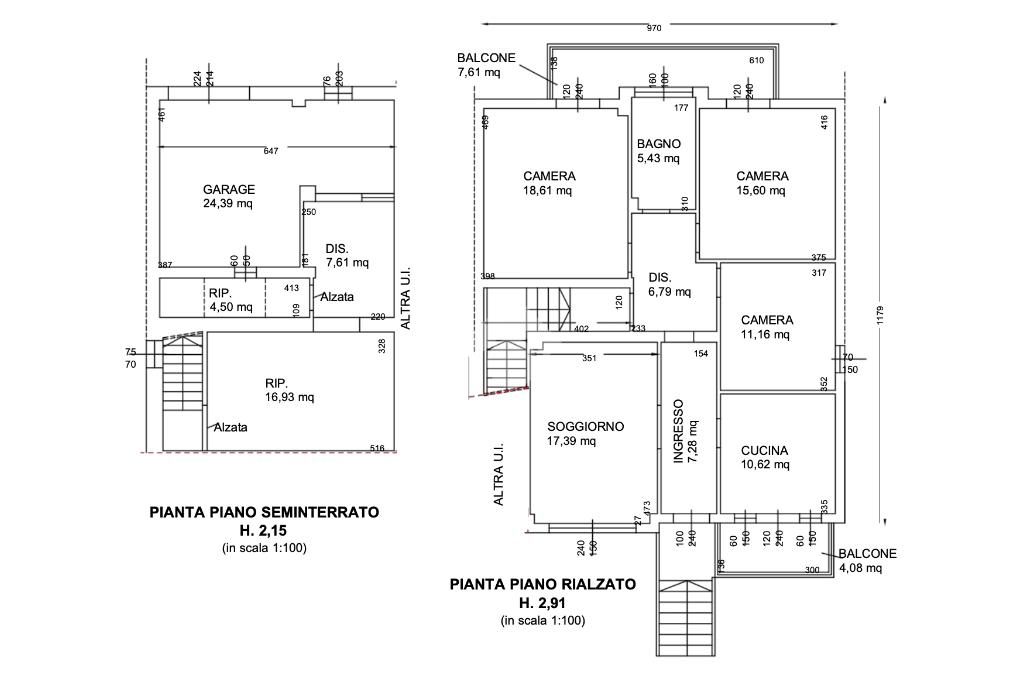
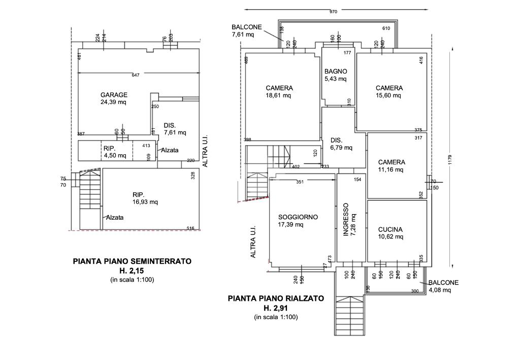
Pesaro località Celletta, è disponibile una villa a schiera in vendita, perfetta per chi cerca una soluzione abitativa spaziosa e funzionale.

L'immobile, di 155 mq, si sviluppa su un piano basso e offre un ambiente accogliente e ben distribuito. La villa comprende una cucina abitabile, un comodo soggiorno, tre camere da letto, ideali per una famiglia, e due bagni. Due balconi, uno sul retro accessibile dalle camere e uno sul fronte lato cucina offre uno spazio esterno aggiuntivo.

Completano la proprietà al piano interrato una tavernetta con camino, un sottoscala dove è possibile ricavare un secondo bagno, un box auto e un posto auto, garantendo comodità e sicurezza per i veicoli.

Il giardino privato rappresenta un'oasi di tranquillità, perfetta per momenti di relax all'aperto.

Costruita nel 1973, la villa è dotata di aria condizionata, assicurando comfort in ogni stagione. Una soluzione abitativa che unisce praticità e spazio in una delle zone più apprezzate di Pesaro.

Mostra tutto

Nelle vicinanze

Trasporto pubblico Trasporto pubblico
stazione di Pesaro
stazione di Pesaro
1,8 Km
Trasporto pubblico
420 m
Ricariche auto elettriche Ricariche auto elettriche
EnelX Eva+ Conad Superstore Pesaro
900 m
CONAD Pesaro | EnelX
2,5 Km
Eneldrive Parcheggio Il Curvone
2,9 Km
Scuole Scuole
Scuola Elementare Luigi Pirandello
420 m
Istituto Tecnico Economico Tecnologico Bramante Genga
520 m
Istituto Professionale per l'Industria e l'Artigianato Giuseppe Benelli
530 m
Liceo Scientifico Guglielmo Marconi
540 m
LICEO MAMIANI LINGUISTICO ECONOMICO SOCIALE
540 m
Farmacia Farmacia
Farmacia Peroni
260 m
Farmacia Comunale Andrea Costa
810 m
Farmacia Comunale San Martino
820 m
Farmacia Comunale Pantano
1,3 Km
Farmacia G. Rossini
1,9 Km
Ospedali Ospedali
Struttura Socio Sanitaria
1,6 Km
Ospedale San Salvatore di Pesaro sede centrale
2,0 Km
Ospedale San Salvatore di Pesaro sede Muraglia
2,5 Km
Supermercati Supermercati
Super A&O
650 m
Conad Superstore
840 m
Dpiù
880 m
Ipercoop Miralfiore
1,1 Km
Simply Market
1,4 Km
Negozi Negozi
Negozi
280 m
Discount
1,7 Km
OVS
2,8 Km
Eurospin
3,0 Km
Bar Bar
Bar
340 m
Bar Antaldi
2,2 Km
Centralino
2,5 Km
Bar Carla 1989
2,5 Km
Edi Bar
2,7 Km
Ristoranti Ristoranti
America Graffiti
680 m
Angolo della pizza
970 m
Osteria La Poderosa
1,1 Km
C'Era Una Volta
2,2 Km
Felici e Contenti
2,2 Km
Mostra tutto

Caratteristiche

Rif.:
61102193
Piano:
1 di 2 (Piano basso)
Box:
1
Posti auto:
1
Balconi:
2
Camere da letto:
3
Mostra tutto
Prezzo Prezzo
€ 315.000
Rata mutuo Rata mutuo
€ 1.398 / mese
Spese annue Spese annue
€ 0
Proponi il tuo prezzoProponi il tuo prezzo

Classe Energetica

G
G
G
G
G
G
G
G
G
EP globale non rinnovabile:
296.84 kW h/m² anno
EP globale rinnovabile:
2.04 kW h/m² anno
EP invernale del fabbricato:
EP estiva del fabbricato:
Anno di costruzione:
1973
Riscaldamento:
Autonomo
Tipo impianto:
A radiatori
Tipo alimentazione:
Metano

Ti interessa visionare l'immobile?

Fissa un appuntamento  Fissa un appuntamento

Richiedi informazioni

* Questi campi sono obbligatori

Calcola il tuo mutuo

Semplice e senza impegno
Anticipo

( % )
Mutuo

( % )

pochi semplici passi

inserisci i tuoi dati
Questionario completato
Grazie per aver richiesto un appuntamento senza impegno con un nostro Consulente del Credito e Assicurativo.

Hai inserito correttamente tutti i dati necessari e a breve riceverai una e-mail con un link da convalidare per inviare i tuoi dati.
Affiliato
Studio Diciotto Srl
Via Bidente, 1/G 47900 Rimini (RN)

Il nostro staff


  • Davide Fratti
    Affiliato

  • Ermes Bertozzi
    Affiliato

  • Sara Lamazzi
    Collaboratrice

  • Barbara Mancini
    Collaboratrice

  • Denise Rizzo
    Responsabile
Via Bidente, 1/G 47900 Rimini (RN)
Zona: Villaggio I Maggio-Bellariva-Marebello-Gaiofana
Mostra su mappa
Orari: Lunedì - Venerdì: 9.00 - 13.00 / 15.00 - 19-00 Sabato: 9.00 - 13.00
Affiliato
Studio Diciotto Srl
Via Bidente, 1/G 47900 Rimini (RN)

2025 Tecnocasa Franchising S.p.A. - P. IVA 08365160152 - Via Monte Bianco 60/A 20089 Rozzano (MI). Ogni agenzia ha un proprio titolare ed è autonoma. Privacy policy | Policy utilizzo | Cookie policy